上海“美丽乡村“”青年创意设计大赛一等奖收缩的村庄“稻田里的守望者”
JOIN 加禾建筑设计是目前建筑市场上比较活跃的一家新型设计公司,无论是公共建筑还是住宅开发,加禾创造了众多成果案例,赢得了业主及同行的尊重和赞誉。
目前公司业务范围涉及城市规划设计、可行性研究、建筑设计、景观设计、专项设计与咨询、室内设计等多个领域,并在城市综合体、集群商业、高档写字楼、居住区规划、高档住宅社区等方面形成了专业优势。
杜鹏老师,率领团队在建筑领域积极拓展设计思路挖掘作品的商业潜力。伴随着一个个成功案例,杜鹏也完成了从设计师到经营者的角色叠加。以优异成绩和稳定发挥,展现出设计大家的风范。
团队作品有深度更有温度,在商业综合体、文旅、科教、住宅板块表现出色。
项目介绍
地理特征:
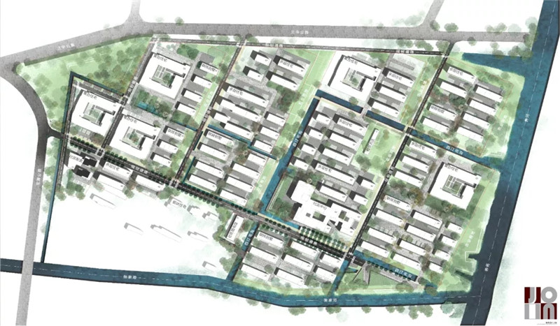
项目位于三星镇协进村,北至三华公路,东至界河,西至林地,南至张家港,总用地面积约15.90万平方米。三星镇位于上海市崇明西部,南濒长江,北与新海农场、红星农场为邻。镇政府所在地距县城17.5公里,全镇总面积68.17平方千米,耕地面积4528公顷。最早居住的渔民通过观测太阳、月亮、星星来安排渔业劳作,“三星”由此得名。
自然资源与禀赋: 三星镇西侧有大湖,与长江一堤之隔,是崇明最大的天然淡水湖泊。湖区占地6500亩,湖中盛产鱼蟹资源,水质国家二级,大气环境质量国家一级。湖区水源涵养林广泛种植香樟、广玉兰等50多种上百万株名贵树木,四周还有茂盛的森林、密布的河网,丰富的野花野草和自然植被,吸引了大量银鸥、苍鹭、白鹭等共计七八十种鸟类来此栖息。2017年12月17日,三星镇获评2017中国最美村镇50强。

精明的收缩
未来,良好的生态治理和环境资源保护性开发是三星镇永续发展的坚实依托。精明收缩(SMART GROWTH+SHRINKING VILLAGE),是出于世界级思路和眼光的考量。



诗意的栖居

小时候,
乡愁是一枚小小的邮票,
我在这头,
母亲在那头。
——《乡愁》余光中

纵是沙岛文化主导下的三星镇,也依然沐浴于江南的绵绵细雨中,在长枪大马的风骨下依依存留着江南独有的精致与细腻,不断向我们提示着这里深厚的文化蕴含,寄托着更为悠远深沉的乡愁而令人神往唏嘘。传承了粉墙黛瓦的传统韵味,建筑沿着小河展开小巧腾挪的身姿,交错律动的黛瓦屋顶如波光般鳞次栉比,传递了江南的柔情。

水田交错的规划平面▲

规划分析-
平整的地势,纵横直通的水系,模块化生长的单体建筑,完美契合三星镇村庄肌理的典型特征


更少的电梯+能耗
更多的绿廊+交往
单体建筑▼



集合住宅
模型效果图▼


经济指标
住宅平面,剖面▼

生活的延续


未来生活场景
生机勃勃的小镇景象

当你老了,放心,稻田里有我的守望
“THE CATCHER IN THE RYE”

项目名称:崇明区三星镇协进村集中归并安置点设计
设计公司:上海加禾建筑设计有限公司
获奖名次:一等奖
项目信息来源:加禾JOIN(JOIN1619)
北京伯尔明建筑工程设计有限公司
2020年3月30日